Te Huur 2 Kamer Appartement Boeninlaan In Amsterdam

Amsterdam
Boeninlaan
€ 1185,-
G/W/L
Exclusief G/W/L
Soort woning
Appartement
Oplevering
Kaal
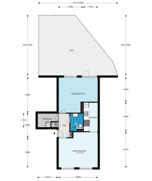
Woonoppervlakte
57m²
Aantal kamers
2
Aantal slaapkamers
1
Beschikbaar per
30-3-2026
Bezichtiging vanaf
28-3-2026
Selectiedatum
26-3-2026
Gecontroleerd op: 29-Mar-2026
Schrijf je in om te reageren
Bemiddelingskosten
Nee
Object
Direct bij de eigenaar
Borg
1185
Garantiestelling
Mogelijk
Huurtoeslag
Niet mogelijk
Inkomen eis
3,1 X Maandhuur Bruto
Huurtermijn
Onbepaalde termijn
Oplevering
Kaal