Te Huur 2 Kamer Appartement Olof Palmeplein In Amsterdam

Amsterdam
Olof Palmeplein
€ 1250,-
G/W/L
Exclusief G/W/L
Soort woning
Appartement
Oplevering
Kaal
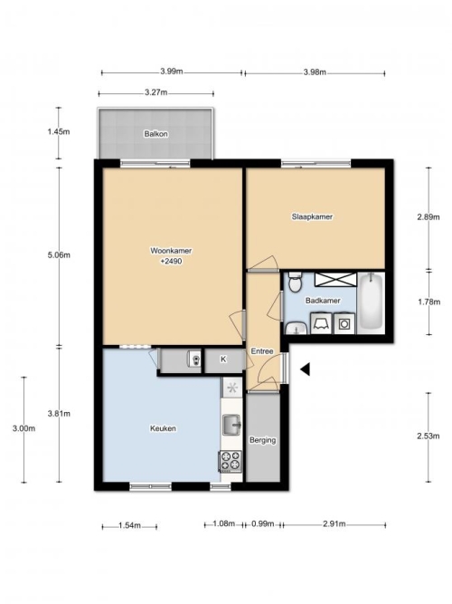
Woonoppervlakte
60m²
Aantal kamers
2
Aantal slaapkamers
1
Beschikbaar per
4-2-2026
Bezichtiging vanaf
30-1-2026
Selectiedatum
28-1-2026
Gecontroleerd op: 16-Jan-2026
Schrijf je in om te reageren
Bemiddelingskosten
Nee
Object
Direct bij de eigenaar
Borg
1250
Garantiestelling
Mogelijk
Huurtoeslag
Niet mogelijk
Inkomen eis
3,1 X Maandhuur Bruto
Huurtermijn
Onbepaalde termijn
Oplevering
Kaal