Te Huur 2 Kamer Appartement Van Leeuwenhoekstraat In Haarlem

Haarlem
Van Leeuwenhoekstraat
€ 850,-
G/W/L
Exclusief G/W/L
Soort woning
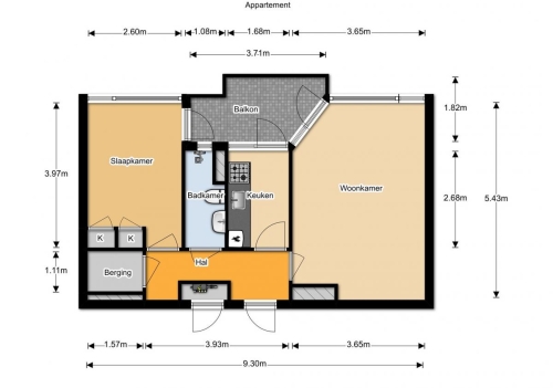
Appartement
Oplevering
Kaal
Woonoppervlakte
45m²
Aantal kamers
2
Aantal slaapkamers
1
Beschikbaar per
1-1-2026
Bezichtiging vanaf
30-12-2025
Selectiedatum
24-12-2025
Gecontroleerd op: 29-Nov-2025
Schrijf je in om te reageren
Bemiddelingskosten
Nee
Object
Direct bij de eigenaar
Borg
850
Garantiestelling
Niet mogelijk
Huurtoeslag
Mogelijk
Inkomen eis
N.V.T.
Huurtermijn
Onbepaalde termijn
Oplevering
Kaal