Te Huur 3 Kamer Appartement Flakkeestraat In Amstelveen

Amstelveen
Flakkeestraat
€ 1087,-
G/W/L
Exclusief G/W/L
Soort woning
Appartement
Oplevering
Kaal
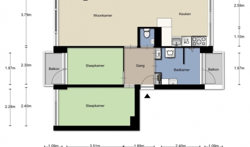
Woonoppervlakte
67m²
Aantal kamers
3
Aantal slaapkamers
2
Beschikbaar per
18-11-2025
Bezichtiging vanaf
13-11-2025
Selectiedatum
11-11-2025
Gecontroleerd op: 15-Oct-2025
Schrijf je in om te reageren
Bemiddelingskosten
Nee
Object
Direct bij de eigenaar
Borg
1087
Garantiestelling
Mogelijk
Huurtoeslag
Niet mogelijk
Inkomen eis
3,2 X Maandhuur Bruto
Huurtermijn
Onbepaalde termijn
Oplevering
Kaal