Te Huur 3 Kamer Appartement Generaal S.H. Spoorstraat In Dordrecht

Dordrecht
Generaal S.H. Spoorstraat
€ 862,-
G/W/L
Exclusief G/W/L
Soort woning
Appartement
Oplevering
Kaal
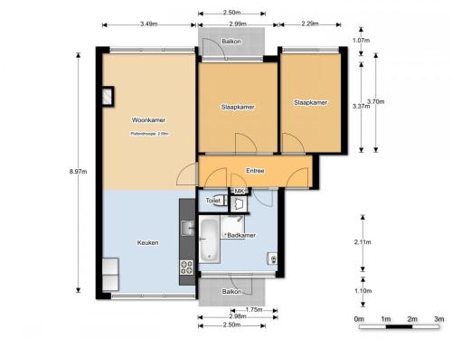
Woonoppervlakte
60m²
Aantal kamers
3
Aantal slaapkamers
2
Beschikbaar per
27-4-2026
Bezichtiging vanaf
22-4-2026
Selectiedatum
20-4-2026
Gecontroleerd op: 25-Mar-2026
Schrijf je in om te reageren
Bemiddelingskosten
Nee
Object
Direct bij de eigenaar
Borg
862
Garantiestelling
Niet mogelijk
Huurtoeslag
Mogelijk
Inkomen eis
N.V.T.
Huurtermijn
Onbepaalde termijn
Oplevering
Kaal