Te Huur 3 Kamer Appartement Pharus In Zaandam

Zaandam
Pharus
€ 860,-
G/W/L
Exclusief G/W/L
Soort woning
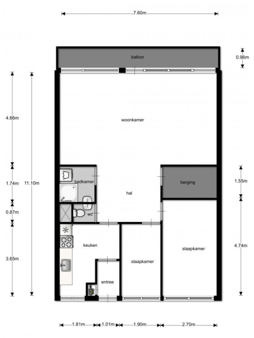
Appartement
Oplevering
Kaal
Woonoppervlakte
80m²
Aantal kamers
3
Aantal slaapkamers
2
Beschikbaar per
2-3-2026
Bezichtiging vanaf
27-2-2026
Selectiedatum
25-2-2026
Gecontroleerd op: 04-Feb-2026
Schrijf je in om te reageren
Bemiddelingskosten
Nee
Object
Direct bij de eigenaar
Borg
860
Garantiestelling
Niet mogelijk
Huurtoeslag
Mogelijk
Inkomen eis
N.V.T.
Huurtermijn
Onbepaalde termijn
Oplevering
Kaal