Te Huur 3 kamer Appartement Schotlandstraat In Haarlem

Haarlem
Schotlandstraat
€ 1005,-
G/W/L
Exclusief G/W/L
Soort woning
Appartement
Oplevering
Kaal
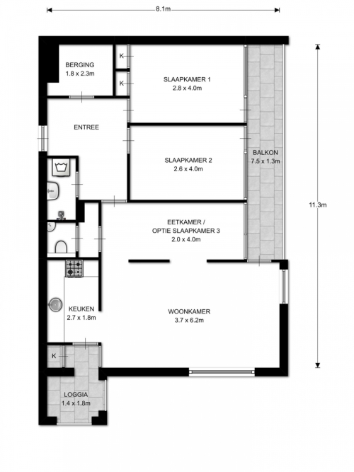
Woonoppervlakte
77m²
Aantal kamers
3
Aantal slaapkamers
2
Beschikbaar per
18-11-2025
Bezichtiging vanaf
13-11-2025
Selectiedatum
11-11-2025
Gecontroleerd op: 16-Oct-2025
Schrijf je in om te reageren
Bemiddelingskosten
Nee
Object
Direct bij de eigenaar
Borg
1005
Garantiestelling
Mogelijk
Huurtoeslag
Niet mogelijk
Inkomen eis
3,1 X Maandhuur Bruto
Huurtermijn
Onbepaalde termijn
Oplevering
Kaal