Te Huur 3 Kamer Appartement Spitsbergen In Almere

Almere
Spitsbergen
€ 1325,-
G/W/L
Exclusief G/W/L
Soort woning
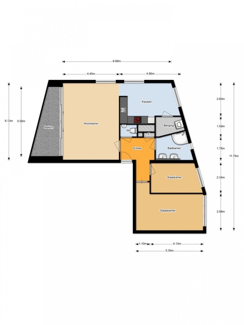
Appartement
Oplevering
Kaal
Woonoppervlakte
87m²
Aantal kamers
3
Aantal slaapkamers
2
Beschikbaar per
28-5-2026
Bezichtiging vanaf
23-5-2026
Selectiedatum
21-5-2026
Gecontroleerd op: 18-Apr-2026
Schrijf je in om te reageren
Bemiddelingskosten
Nee
Object
Direct bij de eigenaar
Borg
1325
Garantiestelling
Mogelijk
Huurtoeslag
Niet mogelijk
Inkomen eis
2,8 X Maandhuur Bruto
Huurtermijn
Onbepaalde termijn
Oplevering
Kaal