Te Huur 3 Kamer Appartement Twikkelstraat In Breda

Breda
Twikkelstraat
€ 875,-
G/W/L
Exclusief G/W/L
Soort woning
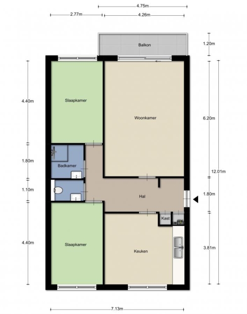
Appartement
Oplevering
Kaal
Woonoppervlakte
85m²
Aantal kamers
3
Aantal slaapkamers
2
Beschikbaar per
1-1-2026
Bezichtiging vanaf
31-12-2025
Selectiedatum
30-12-2025
Gecontroleerd op: 29-Nov-2025
Schrijf je in om te reageren
Bemiddelingskosten
Nee
Object
Direct bij de eigenaar
Borg
875
Garantiestelling
Niet mogelijk
Huurtoeslag
Mogelijk
Inkomen eis
N.V.T.
Huurtermijn
Onbepaalde termijn
Oplevering
Kaal