Te Huur 3 Kamer Appartement Vollenhoveschans In Almere

Almere
Vollenhoveschans
€ 1000,-
G/W/L
Exclusief G/W/L
Soort woning
Appartement
Oplevering
Kaal
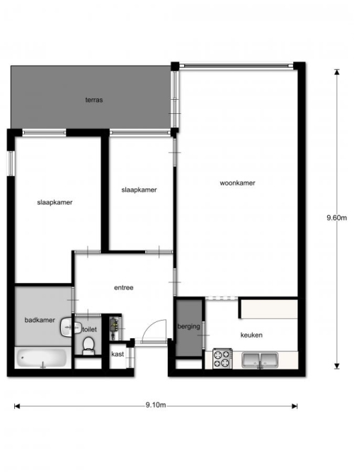
Woonoppervlakte
76m²
Aantal kamers
3
Aantal slaapkamers
2
Beschikbaar per
2-3-2026
Bezichtiging vanaf
27-2-2026
Selectiedatum
25-2-2026
Gecontroleerd op: 05-Feb-2026
Schrijf je in om te reageren
Bemiddelingskosten
Nee
Object
Direct bij de eigenaar
Borg
1000
Garantiestelling
Mogelijk
Huurtoeslag
Niet mogelijk
Inkomen eis
3,1 X Maandhuur Bruto
Huurtermijn
Onbepaalde termijn
Oplevering
Kaal