Te Huur 3 Kamer Appartement Zijlsterraklaan In Utrecht

Utrecht
Zijlsterraklaan
€ 1025,-
G/W/L
Exclusief G/W/L
Soort woning
Appartement
Oplevering
Kaal
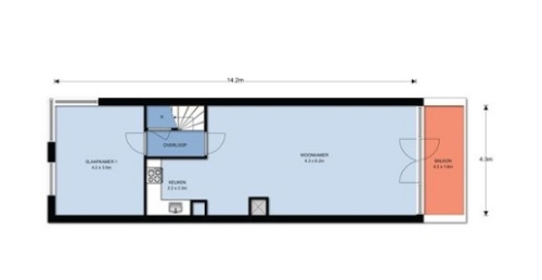
Woonoppervlakte
85m²
Aantal kamers
3
Aantal slaapkamers
2
Beschikbaar per
20-11-2025
Bezichtiging vanaf
15-11-2025
Selectiedatum
13-11-2025
Gecontroleerd op: 16-Oct-2025
Schrijf je in om te reageren
Bemiddelingskosten
Nee
Object
Direct bij de eigenaar
Borg
1025
Garantiestelling
Mogelijk
Huurtoeslag
Niet mogelijk
Inkomen eis
2,9 X Maandhuur Bruto
Huurtermijn
Onbepaalde termijn
Oplevering
Kaal