Te Huur 4 Kamer Appartement J.J. van Deinselaan In Enschede

Enschede
J.J. van Deinselaan
€ 850,-
G/W/L
Exclusief G/W/L
Soort woning
Appartement
Oplevering
Kaal
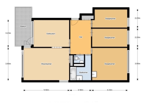
Woonoppervlakte
98m²
Aantal kamers
4
Aantal slaapkamers
3
Beschikbaar per
1-1-2026
Bezichtiging vanaf
29-12-2025
Selectiedatum
23-12-2025
Gecontroleerd op: 29-Nov-2025
Schrijf je in om te reageren
Bemiddelingskosten
Nee
Object
Direct bij de eigenaar
Borg
850
Garantiestelling
Niet mogelijk
Huurtoeslag
Mogelijk
Inkomen eis
N.V.T.
Huurtermijn
Onbepaalde termijn
Oplevering
Kaal