Te Huur 4 Kamer Appartement Meulemansstraat In Tilburg

Tilburg
Meulemansstraat
€ 955,-
G/W/L
Exclusief G/W/L
Soort woning
Appartement
Oplevering
Kaal
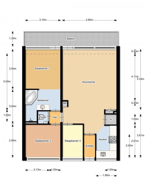
Woonoppervlakte
80m²
Aantal kamers
4
Aantal slaapkamers
3
Beschikbaar per
1-1-2026
Bezichtiging vanaf
29-12-2025
Selectiedatum
23-12-2025
Gecontroleerd op: 29-Nov-2025
Schrijf je in om te reageren
Bemiddelingskosten
Nee
Object
Direct bij de eigenaar
Borg
955
Garantiestelling
Mogelijk
Huurtoeslag
Niet mogelijk
Inkomen eis
3,3 X Maandhuur Bruto
Huurtermijn
Onbepaalde termijn
Oplevering
Kaal