Te Huur 4 Kamer Appartement Volendamlaan In Den Haag

Den Haag
Volendamlaan
€ 1020,-
G/W/L
Exclusief G/W/L
Soort woning
Appartement
Oplevering
Kaal
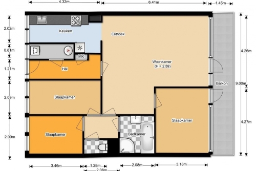
Woonoppervlakte
85m²
Aantal kamers
4
Aantal slaapkamers
3
Beschikbaar per
30-3-2026
Bezichtiging vanaf
26-3-2026
Selectiedatum
24-3-2026
Gecontroleerd op: 04-Mar-2026
Schrijf je in om te reageren
Bemiddelingskosten
Nee
Object
Direct bij de eigenaar
Borg
1020
Garantiestelling
Mogelijk
Huurtoeslag
Niet mogelijk
Inkomen eis
3,1 X Maandhuur Bruto
Huurtermijn
Onbepaalde termijn
Oplevering
Kaal