Te Huur 5 Kamer Appartement Schiedamseweg Beneden In Rotterdam

Rotterdam
Schiedamseweg Beneden
€ 900,-
G/W/L
Exclusief G/W/L
Soort woning
Appartement
Oplevering
Kaal
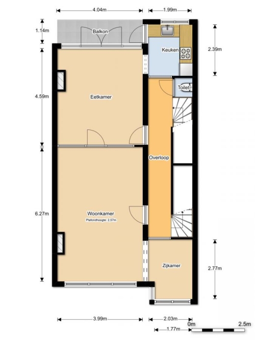
Woonoppervlakte
106m²
Aantal kamers
5
Aantal slaapkamers
4
Beschikbaar per
18-11-2025
Bezichtiging vanaf
13-11-2025
Selectiedatum
11-11-2025
Gecontroleerd op: 14-Oct-2025
Schrijf je in om te reageren
Bemiddelingskosten
Nee
Object
Direct bij de eigenaar
Borg
900
Garantiestelling
Niet mogelijk
Huurtoeslag
Mogelijk
Inkomen eis
N.V.T.
Huurtermijn
Onbepaalde termijn
Oplevering
Kaal