Te huur Appartement Dirk Hartogstraat in Breda

Breda
Dirk Hartogstraat
€ 1850,-
Soort woning
Appartement
Oplevering
Kaal
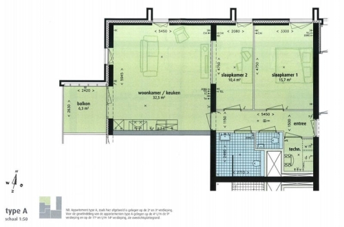
Woonoppervlakte
75m²
Aantal kamers
3
Aantal slaapkamers
2
Beschikbaar per
Per 01-06-2026
Gecontroleerd op: 24-May-2026
Schrijf je in om te reageren
Oplevering
Kaal
Omschrijving

Dit appartement op de 14e verdieping (type B) heeft een totale woonoppervlakte van 75m² met oa. woonkamer/keuken van ca 32m2 en heeft 2 slaapkamers, een wasruimte en aparte toilet, badkamer en een technische ruimte. Dit appartement heeft een parkeerplaats naast het complex, een eigen berging, gemeenschappelijke fietsenberging en twee liften. Dit appartement is gesitueerd in de exclusieve woontoren "Constant" in een parkachtige omgeving aan de rand van het groene buitengebied van Breda, doch let...... Als je verder klikt kom je bij een nieuwe pagina met uitgebreide informatie over de huurwoning en met de directe contactgegevens van de beheerder